マップから探す

高岡市 ファミエールタウンはおか(はおか保育園横)

価 格 改 定

市立はおか保育園が目の前♪

\ 東南向きの残 1区画  /

土地坪単価:10.9万円にて販売中!
消雪装置&ゴミステーション完備!

公園横の整形地!

高岡西部小(旧西条小)・高岡西部中校区
※2027(令和9)年度より小中一貫校にて開校!

国道8号線にも程近く、周辺には商業・飲食等の施設も充実♪
2026年秋には高岡市早川(旧立山アルミ本社工場跡地)地内に「(仮称)平和堂高岡早川店」が出店!当分譲地より車で約3分の距離で、益々便利に♪

■物件資料はこちらをクリック

→土地利用計画図

  • 2025年10月 
  • 高岡西部小※旧西条小
  • 弊社分譲住宅は、「全棟地震補償付き住宅」

メリット

  1. 土地の坪単価が相場より安い!
  2. 建物単価の割引有り!
  3. 外構工事施工の割引有り!

価 格 改 定

市立はおか保育園が目の前♪

\ 東南向きの残 1区画  /

土地坪単価:10.9万円にて販売中!
消雪装置&ゴミステーション完備!

公園横の整形地!

高岡西部小(旧西条小)・高岡西部中校区
※2027(令和9)年度より小中一貫校にて開校!

国道8号線にも程近く、周辺には商業・飲食等の施設も充実♪
2026年秋には高岡市早川(旧立山アルミ本社工場跡地)地内に「(仮称)平和堂高岡早川店」が出店!当分譲地より車で約3分の距離で、益々便利に♪

■物件資料はこちらをクリック

→土地利用計画図

区画
番号
建築
条件
土地面積 坪単価 土地価格 負担金 土地
販売価格
1-7 198.45m2 (60.03) 109,000 6,543,270 441,000 6,984,270

[ 物件概要 ] ●所在地/高岡市波岡142番1外13筆及び155番地先外1地先地内  ●地目/宅地  ●都市計画/市街化区域  ●用途地域/第一種住居地域  ●建ぺい率/60%  ●容積率/200%  ●接面道路/公道:幅員6.0アスファルト舗装・消雪装置付き  ●設備/水道:公営水道、排水:公共下水道、電気:北陸電力、ガス:個別LP  ●土地負担金/水道加入金:91,000円、上下水道施設負担金:200,000円、消雪施設負担金:150,000円  ●造成完成/2025年10月  ●販売態様/売主:株式会社とやまアイホーム(仲介:㈱安心住宅)  ※建築条件付き売地は、土地売買契約締結後3か月以内に売主である㈱とやまアイホームとの間で建物の建築工事請負契約が成立することを条件に販売します。万が一この期間内に建築工事請負契約を締結しないことが確定した場合は、土地売買契約の無効が確定し受領済みの手付金等は金額無利息にて速やかに返還いたします。 

現地案内地図

Recommend Plan 推奨プラン

  • 建築条件付き売地 建物推奨プラン
  • 高岡西部小学校
  • 4LDK
  • 参考推奨プラン
  • 1F

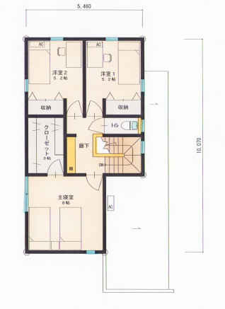
  • 2F

※この土地は、土地売買契約締結後3か月以内に、(株)とやまアイホームと建物の建築請負契約を締結することを条件に販売します。
この期間内に建築請負契約を締結されなかった場合は、土地売買契約は白紙となり、受領した手付金等の土地代金は全てお返しいたします。

※建売住宅ではありません。
※上記プランは一例です。プランはお客様が自由に決定できます。
※推奨プランの価格は参考仕様を想定した参考価格です。
※上記プランの場合、土地代金・建物本体費用・外構工事費のほかに、建築確認費用などの諸経費が別途必要です。
※借入諸経費等は含まれておりません。

※外観の色、外構や植栽はイメージです

●敷地面積:198.45㎡(60.03坪)

●1階面積:65.80㎡(19.90坪)

●2階面積:48.36㎡(14.62坪)

●延床面積:114.16㎡(34.53坪)

●施工面積:115.82㎡(35.03坪)